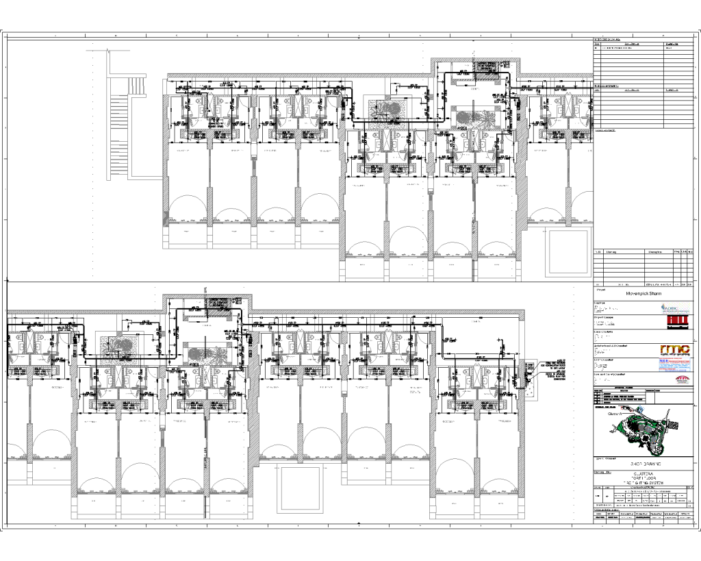
Total area: approx. 3500 m2
Scope of work: shop drawing for fire fighting system and water supply network,
for Cluster A
the best things we’ve done
the best things we’ve done
Total area: approx. 3500 m2
Scope of work: shop drawing for fire fighting system and water supply network,
for Cluster A



